6 6

6 bed House - For Sale
Oak Tree Drive, Newtown, RG20
Offers Over £2,000,000

  • Brand new 5,700 sqft Georgian style home plus double garage and office over. NB Internal images are computer generated in actual rooms
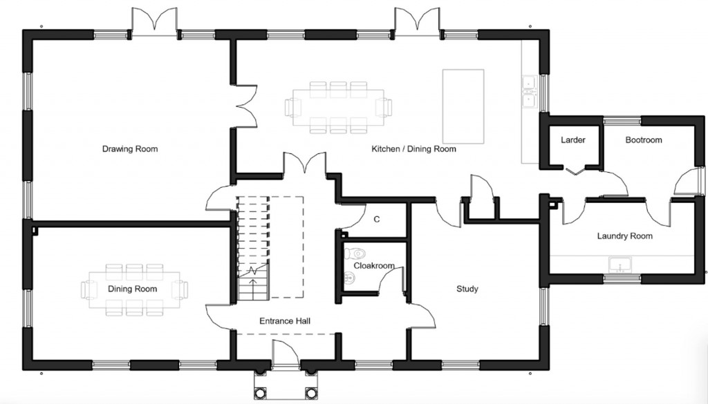
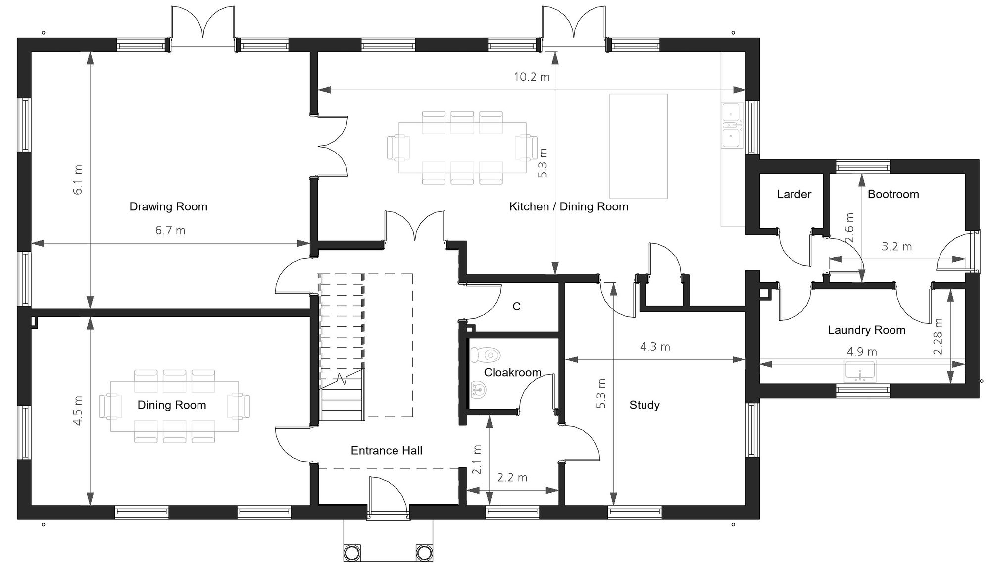
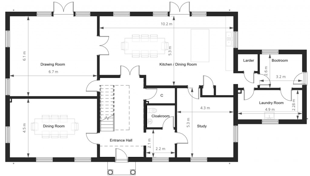
  • Generous kitchen, dining family room overlooking the garden
  • Three further reception rooms, flexible as formal dining room/cinema room, study/playroom and large drawing room
  • Separate entrance to boot room, utility room and fitted pantry leading to kitchen
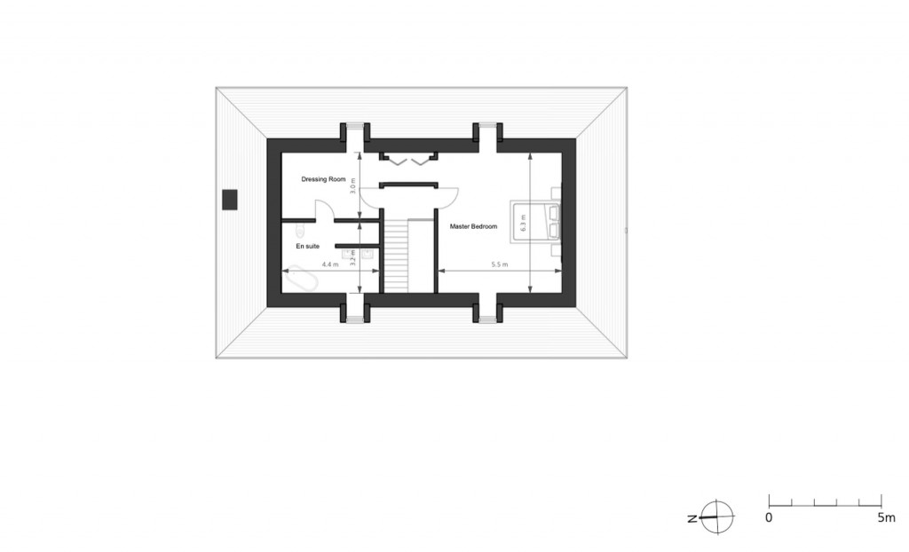
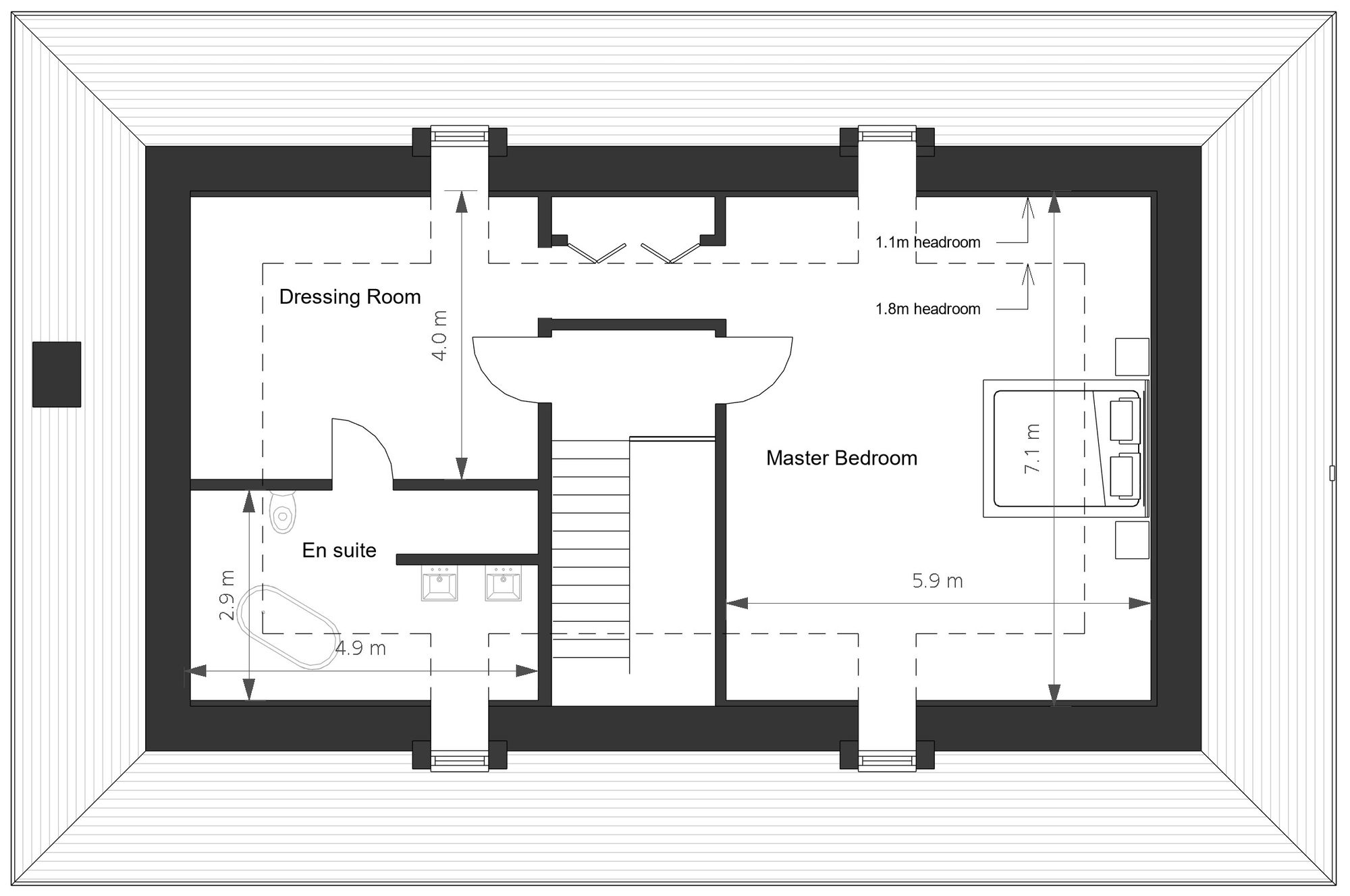
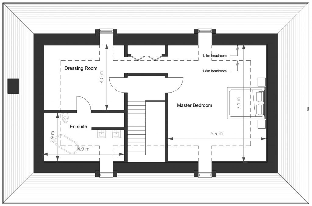
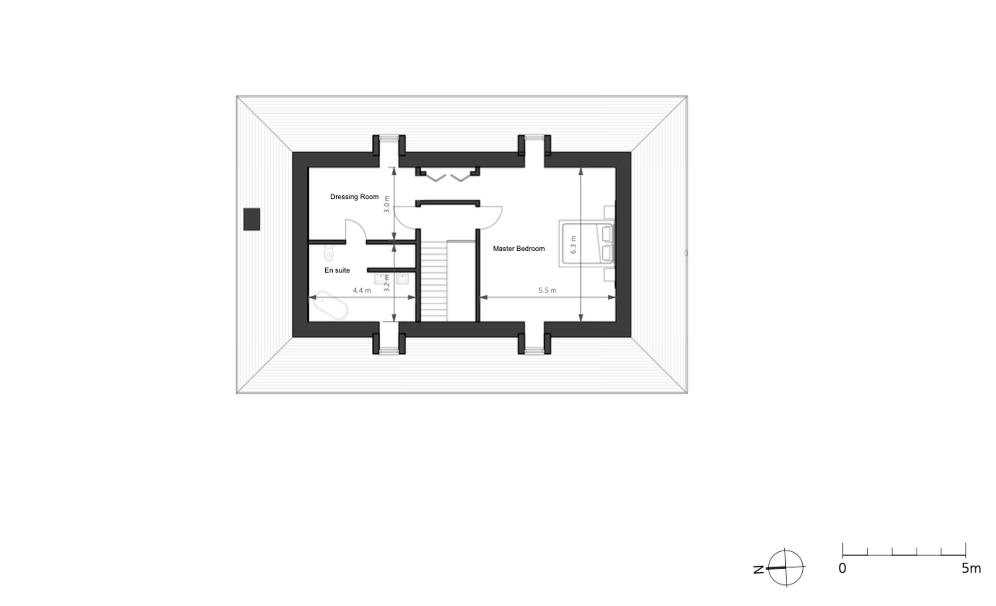
  • The entire second floor is a boutique hotel-style, private principal suite with dressing room and bathroom
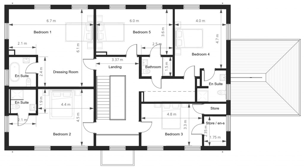
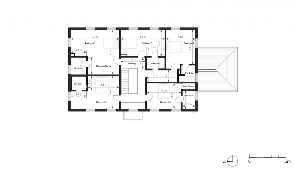
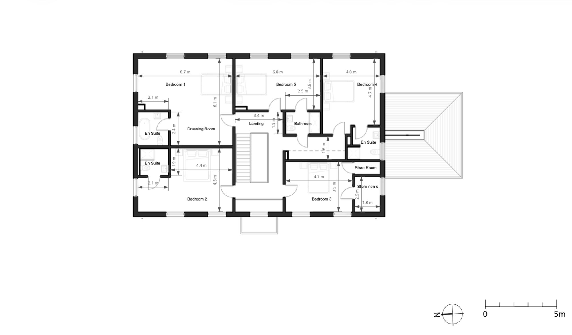
  • Five further double bedrooms, all ensuite
  • Triple glazed sash windows and high ceilings creating light and volume throughout
  • Air source heat pump and heat recovery system making this an energy efficient home with underfloor heating downstairs
  • Cat 6a cables for connectivity throughout the home
  • Rural location near Newtown Common but within easy reach of Newbury for fast trains to London Paddington
A stunning Georgian style new house for the discerning buyer seeking an impressive yet practical family home - the perfect balance of clever design, rural charm and connectivity. 5,700 sqft/522 sqm.

VIDEO NOW AVAILABLE SHOWING CURRENT BUILD AND CGI IMAGES

Guide Price £2,000,000 to £2,250,000 - specification upgrades in flooring, kitchen, bathrooms and interior finishes may be available to potential buyers as this property is in the final stages of build. If you would like to discuss further, please get in touch.

The Inside Story

“This is an incredible home - the thoughtful design of this family home makes an impression from the moment you walk into the triple height hallway. The generous size of the rooms is amplified with high ceilings and sash windows, and the rooms flow, yet also give privacy. I particularly love the boot room and pantry - perfect for shedding muddy boots after a walk on the common, or grabbing a snack after school!”

Right at the top, beyond the oak tree that gives Oak Tree Drive it’s name, stands a truly magnificent six double bedroom home with an impressive Georgian-style frontage. Entering into the sweeping driveway with gated entrance, gravel crunching under tyres, this home exudes elegance and grandeur in equal measure. Step inside the entrance hall and a galleried staircase floods the generous space with natural light from the top floor atrium window.

The Georgian era gave us a classic architectural style which included sash windows with multi-pane formation; a flat fronted home extending to 3 floors inside. No 3 delivers this in spades. A modern eco-home version taking all the original design elements with impressive sustainability credentials.

The generous 50sqm kitchen, dining and family room is perfect for gathering at the start or end of the day, steeped in natural light and with views onto the garden. French doors bring the outside in, and make outdoor entertaining a breeze on a warm evening. This room also links to the formal drawing room, again with French doors to the garden. The thoughtful flow of these downstairs rooms just works - whether you are a busy family or regularly entertaining guests. There is a further reception room at the front of the house which has been designed to be flexible - whether it is a formal dining room, additional living room or cinema room, this 30sqm space is waiting for you to decide.

A separate study at the front of the house, with cloakroom and wc could be used as a private office space perfect for receiving clients, or as a playroom.

As you would expect in a house of this size and nature, there is an impressive collection of useful ancillary rooms - the all important larder, Laundry Room and separate Boot Room, all accessible from the side door.

Outside, the driveway has space for 3 or 4 cars, as well as a double garage with office space above as well as potential to develop a basement area. The back garden is accessed from both sides of the house and offers an opportunity to create an oasis of calm and privacy, backing onto paddocks.


“Light, space, and comfort — designed for the way you live.”

Upstairs, the exceptionally well planned space on the first floor allows for an impressive suite with ensuite and dressing room and four further generous bedrooms, all with ensuite bathrooms. The upper floor has been created with a boutique style hotel in mind - a principal suite in it’s own private space with generous bedroom, dressing room and ensuite with freestanding tub and walk in shower. This collection of rooms has views over open countryside to the rear, and is an oasis of calm away from the rest of the house.

Newbury’s Best Kept Secret

Step beyond the drive and the Common unfolds — a landscape shaped by centuries, alive with colour and change. In spring, bluebells carpet the woodland floor in a haze of violet, while morning mist rises above the heath. Summer brings warmth to the many trails, where children run ahead and dogs race through the trees. Come autumn, the air sharpens; oaks and beeches blaze with russet and gold, their leaves drifting like embers along the paths. Winter reveals the Common at its quietest — frost dusting the ground cover, footfalls crisp and clear in the still air.

These shifting moods are more than scenery; they are invitations. To walk, to pause, to breathe. To gather with family for picnics in the shade, or to stride out alone beneath wide skies. The Common offers a rhythm of its own — steady, grounding, restorative. For those who make their home at Oak Tree Drive, this expanse of wild beauty is not a destination, but part of daily life.

The Great Outdoors

At Oak Tree Drive, gardens are more than boundaries; they are extensions of life beneath open skies, dogs doze in the sun, and evenings stretch long around a table with friends. Beyond the drive, the lane is where morning runs, weekend cycles, and family picnics unfold in easy rhythm. To live here is to carry nature as a constant companion — the rustle of leaves, the play of light, the scent of rain after warm days. With countryside at your doorstep, outdoor living becomes effortless, a natural thread woven into the fabric of everyday life.


“Nature at your doorstep.”

Connectivity

Oak Tree Drive balances seclusion with seamless connection. Newbury station lies just minutes away by car, offering fast trains to London Paddington in around 40 minutes. The A34, A339 and M4 place Newbury, Basingstoke, Oxford, Reading, Southampton and Heathrow within easy reach, opening the door to both business and leisure across the South. Yet travel here is not only about speed — it is about ease. To wake beneath woodland skies, then join the city’s hum before mid-morning, is to enjoy the rare gift of time reclaimed. For those whose days are spread across town and countryside, Oak Tree Drive ensures that neither world is ever far.


“Wake in the countryside, work in the City.”

Newbury: A Market Town

Newbury is a town alive with culture and charm. The Kennet and Avon Canal winds through its heart, lined with cafés that spill onto the waterside.

For entertainment, the Vue cinema has all the latest releases and the Corn Exchange offers theatre, comedy, and film, while the Racecourse hosts both world-class racing and lively concerts.

Dining ranges from cosy pubs to fine restaurants, with flavours to suit every mood and occasion. From The Woodspeen and The Dew Pond for special occasions to independent restaurants like Mio Fiore to Cote and Pizza Express, there is something for everyone.  

For families, education is exceptional: nearby schools include Horris Hill, St Gabriel’s, and the renowned Cheam School. Good local state primary and secondary schools are also close by in Burghclere and Newbury.

Whether browsing boutiques, catching a performance, or enjoying a riverside walk, Newbury provides the amenities of a vibrant town — all within minutes of the quiet refuge of Oak Tree Drive.

Energy & Design

Behind the elegance of Oak Tree Drive lies a quiet intelligence. Every home carries a B-rated Energy Performance Certificate, reflecting not only lower running costs but a lighter footprint on the land. Underfloor heating brings warmth in the ground floor rooms, and a heat recovery system ensures efficient distribution of heat everywhere. Clever discreet wiring supports the demands of modern life, enabling connectivity in every room.

An electric vehicle charger in the car port is convenient and ready for the journeys of tomorrow, and high-quality insulation together with an Air Source Heat Pump ensures comfort in every season. Sustainability here is woven, not showcased — an ethos of careful design rather than compromise. These are homes shaped for longevity: to support families today, and to meet the needs of a changing world with grace.


“A home built with the future in mind.”

Wellbeing at Home

Home is more than shelter; it is a place of renewal. At Oak Tree Drive, every detail has been shaped with wellbeing in mind. Morning light spills into kitchens, inviting unhurried breakfasts. French doors open onto gardens, where fresh air restores clarity after busy days. Rooms are arranged to offer both openness and retreat — flowing spaces for family gatherings, and quiet corners for stillness. For those who work from home, dedicated studies provide focus without intrusion, while flexible layouts adapt as life evolves.

Wellbeing is also found in the small rituals: yoga on the lawn, children’s laughter drifting upstairs, the simple pleasure of dining together at the close of day. Here, balance is not an aspiration but a natural outcome of thoughtful design. Oak Tree Drive is more than a collection of houses — it is a place where body, mind, and spirit can rest, flourish, and thrive.

Community & Heritage

Oak Tree Drive is not just part of a landscape, but part of a village with deep roots. Newtown has grown gently over the centuries, clusters of cottages in the 140 acre common, the local church, just a few steps away in the lane. The village carries a sense of continuity — parish life (Newtown has it’s own parish council), local pub conversations, neighbours who greet one another by name. Heritage here is not preserved behind glass, but lived each day, woven into the rhythm of community. Nearby Burghclere offers good Primary and Secondary schools.

At the same time, Newtown looks forward. Families are welcomed, traditions are shared, and new stories find a place alongside old. Living here means stepping into a community that values both belonging and individuality. Whether joining in a village event, walking the lanes on a crisp morning, or enjoying a quiet evening at the pub, life here is rich in connection. Oak Tree Drive offers not just a home, but a share in a heritage — a chance to root your story in soil that has been tended for generations.

PLEASE NOTE:

ALL IMAGES OF ROOMS CONTAINING FURNITURE, KITCHEN AND BATHROOMS (INCLUDING FLOORING) ARE COMPUTER GENERATED IMAGES OF WHAT THE ROOMS COULD LOOK LIKE WHEN FURNISHED, HOWEVER FURNITURE AND ANY FIXTURES SHOWN ARE NOT INCLUDED. THEY ARE IMAGINED FROM ACTUAL ROOM DIMENSIONS AND PHOTOS AND ARE THEREFORE REPRESENTATIVE. MORE INFORMATION WILL BE AVAILABLE DURING VIEWINGS. OPTIONS ON ROOM USAGE HAVE BEEN GIVEN FOR THE DINING ROOM/CINEMA ROOM AND THE STUDY/PLAYROOM. PLEASE CONTACT REBECCA AT STOWHILL ESTATES NORTH HAMPSHIRE ON_01635019199_IF YOU HAVE ANY QUESTIONS.

These properties are still under construction and will be ready to move into very soon. Depending on stage, there may be some options to choose finishes and the developers are happy to discuss potential optional extras at an additional agreed cost.

Every attempt has been made to ensure floorplans are accurate as far as possible but they are for illustrative purposes only and should not be relied upon by prospective purchasers. As the properties are unfinished, any measurements are approximate at this stage and should only be used as a guide.

Arrange a viewing for Oak Tree Drive, Newtown, RG20

For further details on this property please call us on:
03330 344 144

Arrange Viewing